Deitigsmann Software & Automatisierungstechnk GmbH
Unsere Leidenschaft: Anlagen zu automatisieren – Arbeitsabläufe zu optimieren und Prozesse effizient zu gestalten.
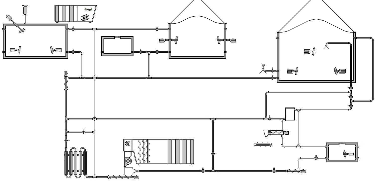
Schaltplan-Design & Dokumentation
Wir setzen Ihre Konzepte in verständliche und normgerechte Schaltpläne um
Über Uns
Vom Ingenieurbüro zum kompetenten Partner
Unsere Reise begann 2014. Als Ingenieurbüro realisierten wir wegweisende Projekte – von Steuerungen für Walzenstühle bis zu komplett automatisierten Anlagen für die Mühlenindustrie.
2019 markierte einen Meilenstein: Die Gründung der Deitigsmann Software & Automatisierungstechnik GmbH. Heute bündeln wir unsere gesamte Expertise unter einem Dach und bieten Ihnen Software- und Automatisierungslösungen aus einer Hand, gebaut auf einem Fundament aus jahrelanger Praxiserfahrung
kW Energie aus Biogasanlagen
Mühlen bzw Getreidelager
Hours Of Support
Mitarbeiter
Planung. Neu gedacht.
Unsere Vision: Schaltschränke nur mit unserem Betriebssystem ausliefern. Nach der Verdrahtung vor Ort führt Ihr Personal IO-Check und Drive-Test durch – mit oder ohne uns. Anschließend gemeinsam die Visualisierung und Programmierung generativ, direkt am Objekt
- Schaltplan generierung auf Grundlage des Angebot
- generatives Design Sheet auf Grundlage des Angebot
- Excel-basierte Code-Generierung für die jeweiligen Anlagen Prozesse.
- Track & Trace
- Web basiertes Zeichnungstool
- Visualisierung generiert via Zeichnungstool
- Anlagen Planungstool
Unsere Technologiepartner



Projekte Referenzen
Von der Getreideanlage zur Mühle bis zu Biogasanlagen – wir freuen uns mit Ihnen Projekte umzusetzen!
Biogasanlagen
Getreidelager
Mühlen
20t - 250t
Walzenstuhlsteuerungen
Für wen wir Arbeiten - Gemeinsam erfolgreich







Team
Unser Team lebt durch Offenheit, Respekt und den Mut, Neues zu denken. Wir glauben, dass die besten Ideen dort entstehen, wo Menschen zusammenkommen, die sich gegenseitig inspirieren, und mann sich nicht gegenseitig die Wurst von der Semmel zieht!
Hinter den Kulissen werkeln hier ein paar Nerds, Kreative und der eine, der immer am Kaffe trinken ist.
Tobias Deitigsmann
- M.Sc Elektrotechnik
- Geschäftführer
Team
Johannes Unbehauen
- Bachelor Professional in Elektrotechnik
- Ausbilder
- Landwirt
Kontakt
Unsere Techniker stehen Ihnen gerne zur Verfügung.
Addresse
Zolläckerstraße 16, DE-74585 Rot am See
Anrufen
+49 7955 926 7630
info[at]Deitigsmann.com